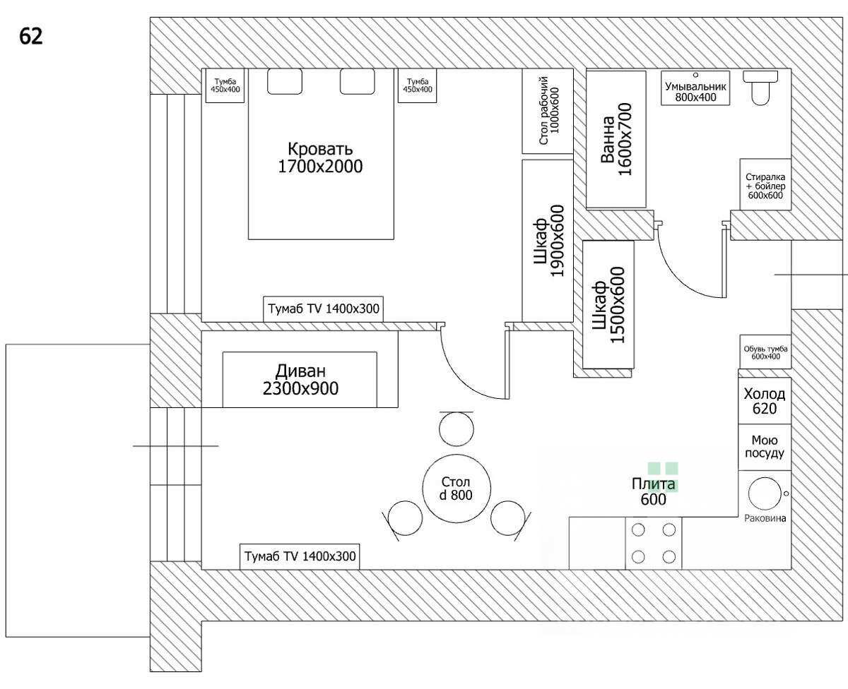
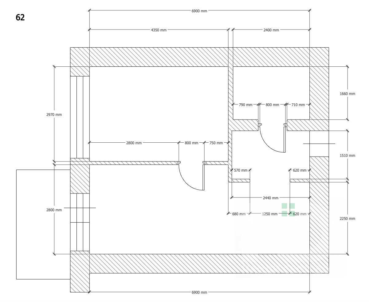
Площадь: 39.7/12.8/18 м2.
Количество комнат: 1
Этажность: 11 /11
Эксклюзивное предложение!!! Видовая квартира с собственной террасой в жилом комплексе комфорт-класса Art Residence. Коммуникации запущены, лифт работает, можно заходить на ремонт. Электрическое отопление с возможностью самостоятельно регулировать его в квартире, заведено 15 кВт.
В квартире много выполнено внутренних работ, а именно: оштукатурены все стены под чистовую отделку, выполнена чистовая лазерная стяжка пола, разведены сантехнические точки, выполнены работы по разведению электричества, заложены магистрали под кондиционеры и в комнате и на кухне. Это позволяет сразу же приступить к чистовому ремонту и не тратить часы и деньги на черновые работы.
ЖК находится в самом центре города Ирпень. Это самая популярная локация в городе! Квартира просторная и светлая, находится на 11 этаже с шикарным видом на парк Правика и парк Ежик. Функциональная планировка, общая площадь квартиры 41м2, кухня 17м2. Изюминкой квартиры является выход из кухни на собственную террасу, где можно проводить час с друзьями или встречать восход за чашкой кофе.
Рядом вся нужная инфраструктура: детский сад и школы №1, №2, №17, спорт клуб, салон красоты, новая почта, кафе и рестораны, супермаркеты и магазины, выход в парк с зоной барбекю. Территория ЖК будет облагорожена и украшена. От ЖК до Киева ехать 15 минут на авто. Звоните и приезжайте на просмотр!




























