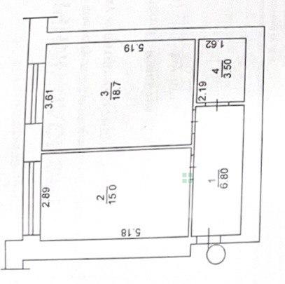
Общая площадь: 44,46 м2
Жилая площадь: 18,59 м2
Площа кухни: 15,10 м2
Этаж/этажность: 7/10
Предлагается к продаже просторная однокомнатная квартира в новом современном жилом комплексе «Континент Рей», одном из перспективных пригородов Киева. Общая площадь квартиры составляет 45 квадратных метров. планировка, просторную комнату с большим окном, кухню, прихожую, смежный санузел. собственный дизайн и обустроить пространство по собственным предпочтениям.
Жилой комплекс «Континент Рей» имеет закрытую территорию с хорошо обустроенным внутренним двором, где есть зеленые зоны отдыха, современная детская площадка и удобные пешеходные дорожки.
Застройщик уделил большое внимание качеству строительства – дом возведен из энергоэффективных материалов, обеспечивающих хорошую тепло- и шумоизоляцию.
Локация является одной из лучших в Буче. В пешей доступности находится: школы, остановки общественного транспорта, супермаркеты, аптеки, детские сады, кофейни и спортзалы.
Эта квартира – отличный вариант как для личного комфортного проживания, так и для инвестирования с целью дальнейшей сдачи в аренду или перепродажу.




























































