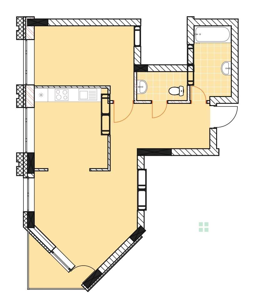
Общая площадь: 59 м2
Жилая площадь: 25 м2
Площадь кухни: 10 м2
Этаж/этажность:9/15
Просторная двухкомнатная квартира в современном жилом комплексе ЖК River Port расположена на 9 этаже из 15, общей площадью 59 м². Удачная планировка обеспечивает комфортное проживание и четкое зонирование пространства.
Квартира имеет две отдельные комнаты, что позволяет удобно организовать спальню и гостиную или детскую/кабинет. Кухня вынесена в отдельную зону, функциональна и светлая, с возможностью обустройства полноценной обеденной зоны. Просторный коридор позволяет установить вместительный шкаф или гардероб.
Санузел раздельный, что значительно повышает комфорт в повседневном использовании. Благодаря нестандартной геометрии квартиры и большим окнам помещения наполнены естественным светом и смотрятся просторно.
ЖК River Port – это современный жилой комплекс с продуманной инфраструктурой. На территории предусмотрено укрытие, что является важным преимуществом. Дом оборудован собственной котельной, гарантирующей стабильное отопление и экономию на коммунальных платежах.
Квартира идеально подойдет как для семейного проживания, так и инвестиции. Удачный этаж, современный ЖК и функциональная планировка делают это предложение особенно привлекательным.




















