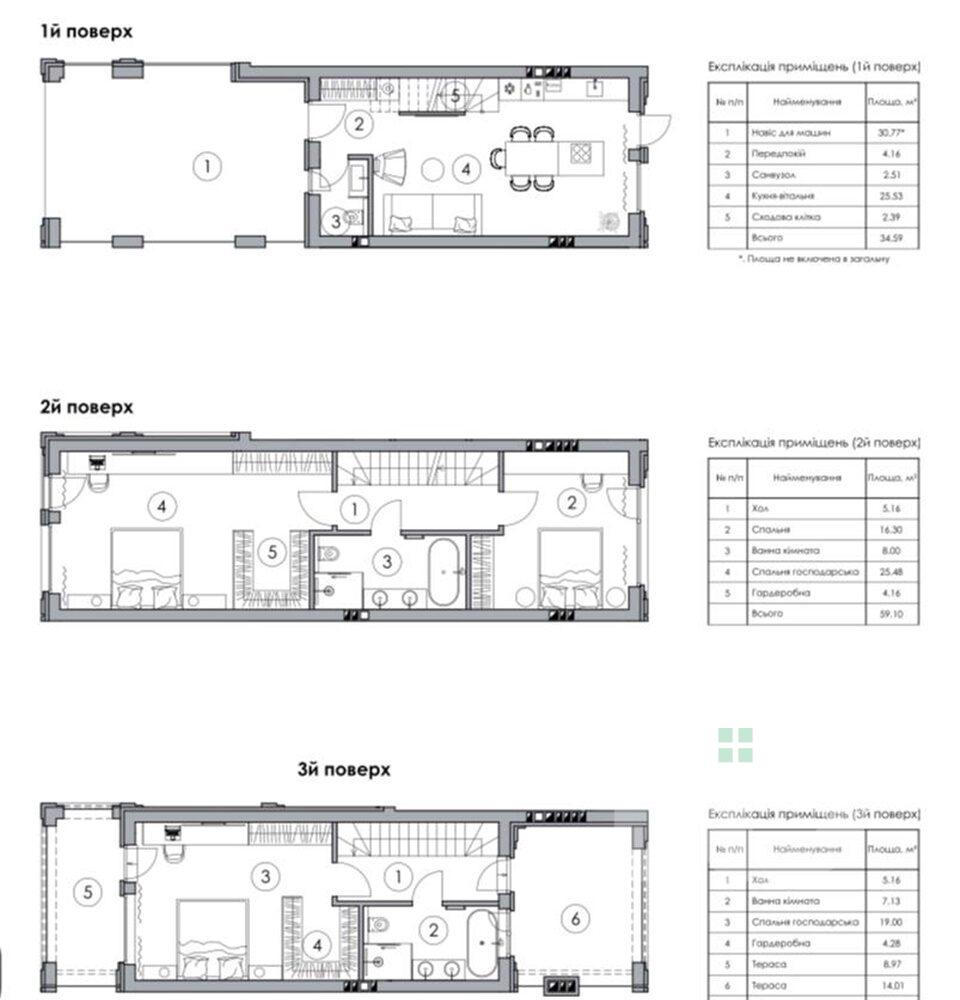
Общая площадь: 120,9 м²;
Жилая площадь: 65,84 м²;
Площадь кухни: 20,49 м²;
Площадь участка: 0,95 сотка
Таунхаусы расположены в эксклюзивном жилом комплексе Wise House, расположенном в престижном районе города. Это идеальное место для жизни, где вы сможете наслаждаться спокойствием и уютом, а также удобным доступом ко всем необходимым местам. КМ Wise House представляет собой 7 таунхаусов, дом и дуплекс.
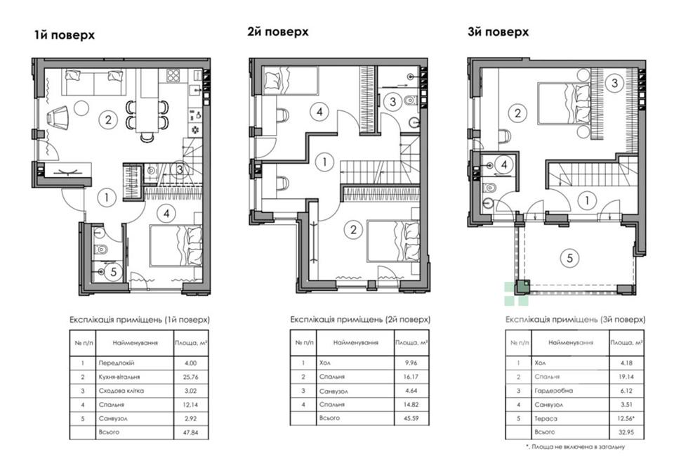
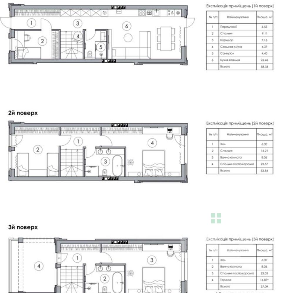
Таунхаус в ЖК Wise House отображает в себе современный дизайн и изысканность. Просторные и светлые комнаты, гармоничная планировка и учет всех потребностей жителей делают это жилье идеальным выбором для семьи или одинокого владельца.
Планировка таунхауса включает все необходимые удобства для комфортной жизни: удачно расположенная кухня, просторные спальни, санузлы, а также частный дворик и терраса, где вы сможете наслаждаться временем на свежем воздухе.
Главными преимуществами КМ являются террасы на 3-м этаже, паркоместа под навесом, возможность укрытия за дополнительную плату, ландшафтный дизайн территории, индивидуальный проект строительства, стильный дизайн, подсветка фасадов.
Таунхаус в ЖК Wise House – это не просто место для жизни, это ваше собственное олицетворение уюта и комфорта. Выбрав это жилье, вы выбираете качество и изысканность. Добро пожаловать в ваш новый дом! Также эти таунхаусы подходят под государственные программы.



