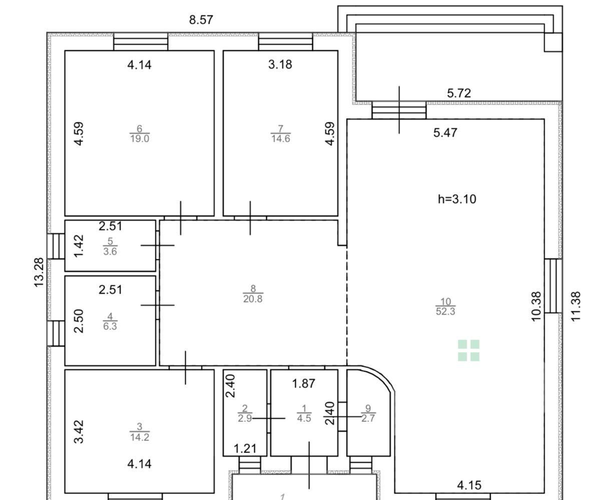
Общая площадь: 141 м2
Жилая площадь: 48 м2
Площадь кухни: 52 м2
Площадь участка: 10 соток
Просторный и современный коттедж площадью 145 м² на 10 сотках, расположен в тихом и зеленом уголке Ворзеля, всего в 15 минутах от Киева.
Удобная планировка с 3 отдельными комнатами, 2 санузлами, удобным коридором и просторной кухней-гостиной (52 м²) с выходом на большую, крытую, террасу.
Большой участок – 10 соток, здесь уже высажены туи, подключен автополив и посеян газон.
Во дворе обустроена крытая барбекю-зона с кирпичной печью-камином и зоной летней кухни.
Большой автонавес, где может разместиться 3 авто, раздвижные ворота с автоматикой.
Дом построен из качественных материалов – керамоблок, утепление минеральная вата, что гарантирует энергоэффективность.
Коммуникации и технические характеристики:
• Газовый котел, теплый, водяной пол по всему дому, кроме спален, где установлены радиаторы.
• Своя скважина 70 м – и септик на 12 м³ с переливом.
• Электричество 3 фазы, 18 кВт, разведенное по точкам
Готов к косметическому ремонту – вы сможете реализовать собственный интерьер, создав атмосферу, максимально соответствующую вашему стилю жизни.
Прекрасная локация: Ворзель, тихая улица новых частных домов, удобный выезд в Киев.
Этот дом – идеальный выбор для тех, кто ценит пространство, качество и комфорт.





























































