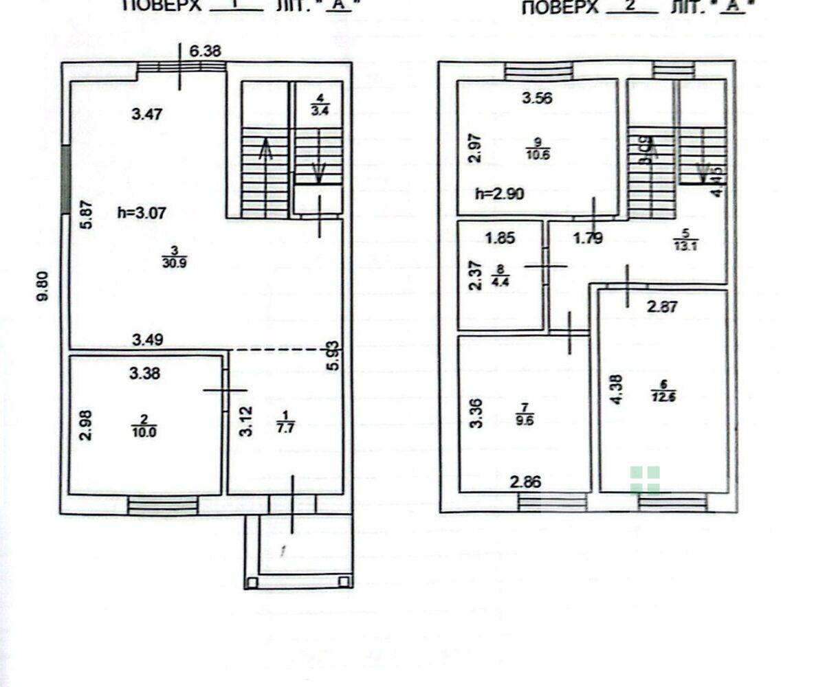
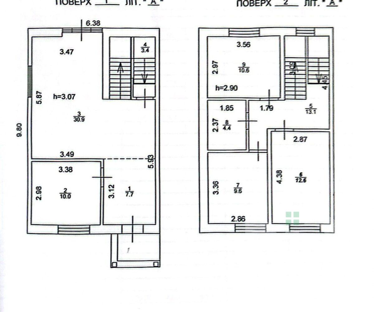
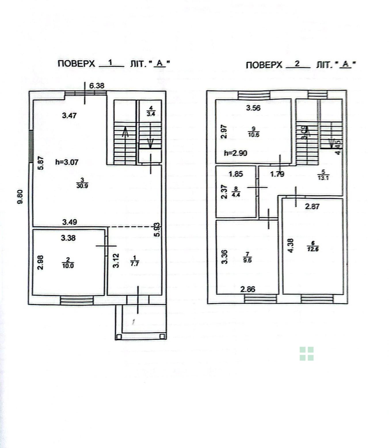
Общая площадь: 102.6 м2
Жилая площадь: 43 м2
Площадь кухни: 30.8 м2
Площадь участка: 1.5 сотки
В продаже двухэтажный таунхаус с ремонтом в отличной локации Бучи.
Возведенный из газоблока, утепленный пенополистиролом 100 мм, фасад комбинированный – штукатурка + облицовочный кирпич.
Таунхаус общей площадью 102.6 м.кв., 4 спальни, кухня гостиная с выходом на задний двор, 2 санузла – гостевой с зоной под стиральную машинку и 2-й с просторной ванной. На второй этаж ведет бетонная лестница выложенная плиткой. Можно дополнительно сделать выход на чердак и обустроить для хранения вещей.
Выполнен ремонт в светлых тонах, на кухне установлена встроенная кухня с техникой.
По всему первому этажу разведен теплый пол, в спальнях второго этажа радиаторы установлен газовый двухконтурный котел.
Коммуникации газ, электричество 3 фазы, 7 кВт, водоотвод – объемный септик, входная вода – скважина.
Установлены калитка и ворота. Место парковки автомобиля и отмостка вымощены плиткой. Очень большая придомовая территория, позволяющая ставить еще несколько автомобилей перед домом.
Отличное расположение – находится на улице Киево-Мироцкой вокруг приятный частный сектор, соседи постоянно живут. Недалеко вся необходимая инфраструктура, рядом остановка маршрутного транспорта. Удобный выезд на Варшавскую трассу.
Подходит под программы.



































































