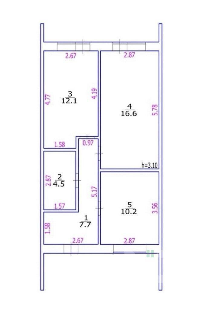
Общая площадь: 56.1 м2
Жилая площадь: 19.62 м2
Площадь участка: 1.5 сотки
Этажность: 1
В Гостомеле стартовала продажа нового проекта одноэтажных таунхаусов, идеально подходящих для комфортной жизни за городом. Это современное, продуманное до мелочей жилье площадью 56 м², в котором есть все необходимое для семьи или пары. В таунхаусе функционально спланировано пространство: просторная кухня-гостиная для ежедневных семейных моментов, две отдельные комнаты, которые могут служить спальней, детской или кабинетом, а также санузел.
К каждому дому принадлежит собственный земельный участок площадью 1,5 сотки – это возможность обустроить зону отдыха, барбекю или небольшой сад.
Проект новый, с современными фасадами и продуманной планировкой. Удобное расположение в Гостомеле – это спокойная жизнь рядом с природой, но с быстрым доступом ко всей инфраструктуре Ирпеня и Киева.
Идеальное решение для ищущих компактное, уютное жилье с собственным двором в тихом пригороде.





























































