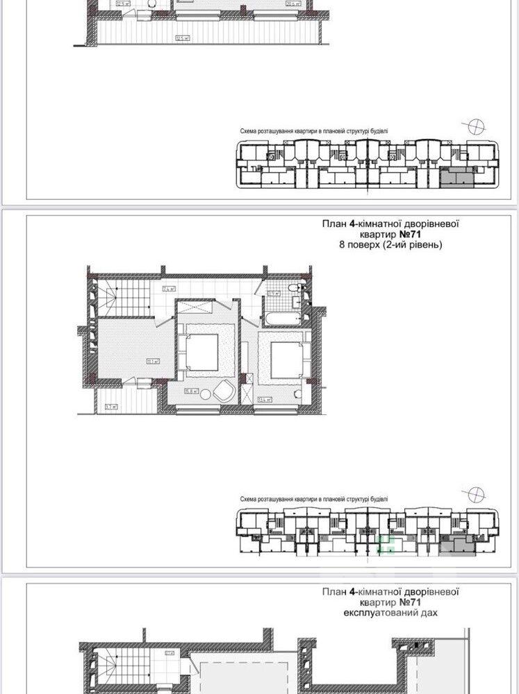
Общая площадь:116,2 м2
Жилая площадь:45,8 м2
Площадь кухни:16 м2
Этаж/этажность:8/8
Светлая двухуровневая квартира с просторными комнатами и большой террасой на крыше. В квартире чистовая штукатурка стен, развод отопления под ключ: радиаторы и турбированные 2-х контурные газовые котлы «Иммергаз» (Италия). В туалете и ванной проложена система теплого пола. Коммуникации все подключены, дом газифицирован. Входная дверь с противопожарным шаром. Придомовая территория защищена, выложена плиткой. Своя пропускная система, видеонаблюдение. Дом обслуживает свое ОСМД.
Инфраструктура: дом расположен возле Центрального парка. В доме есть подземный пиркинг. В пешей доступности школы, детские сады, амбулатория семейной медицины, супермаркеты, магазины, салоны красоты, спортзал. В Киев ехать авто 10 минут.

























