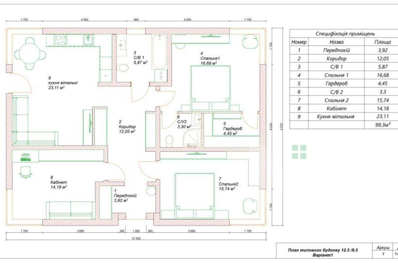
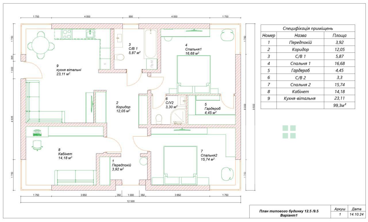
Общая площадь : 99 м2
Жилая площадь : 46.6 м2
Площадь кухни : 23 м2
Площадь участка : 4 сотки
Отличный одноэтажный дом в Ворзеле.
Дом общей площадью 99 м2. Главной особенностью планировки является кухня-гостиная – 23 м2 с выходом на выложенную плиткой террасу, 3 просторные спальные комнаты правильной формы и два отдельных санузла. Мастер спальня имеет гардероб и собственный санузел.
Построен из газоблока, утепленный пенопластом, собственная скважина и объемный септик на 12 кубов, заведено 3 фазы электричества 16 кВт, отопление газ.
Расположен на участке 4 сотки, на котором Вы с легкостью сможете разместить беседку, барбекю и т.д. Территория ограждена капитальным забором, калитка и откатные ворота, дорожки и место под автомобиль выложены качественной брусчаткой.
Очень удачное расположение в коттеджном городке, рядом с лесом. Поселок будет иметь собственную инфраструктуру, супермаркет, школу и детский сад. Рядом остановка маршрутного транспорта.
Удобный выезд на Варшавскую трассу и в сторону Ирпеня.
Рассрочка на 6-12 мес. Без удорожания. Рассматриваются все программы
































































